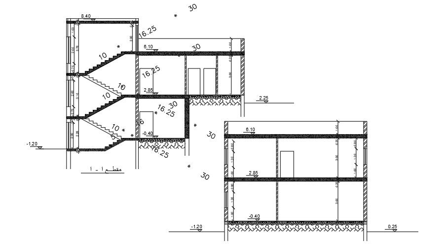
14x10m house building section view
Description
14x10m house building section view is given in this AutoCAD drawing model. This is a duplex house plan. The total height of the building is 8.4m. The living room, kitchen, master bedroom with the attached toilet, family lounge area, guest room, two kid’s room, common bathroom are available. For more details download the AutoCAD drawing file from our website.
Uploaded by:

