22’x60’ Modern House Plan And Elevation CAD File
Description
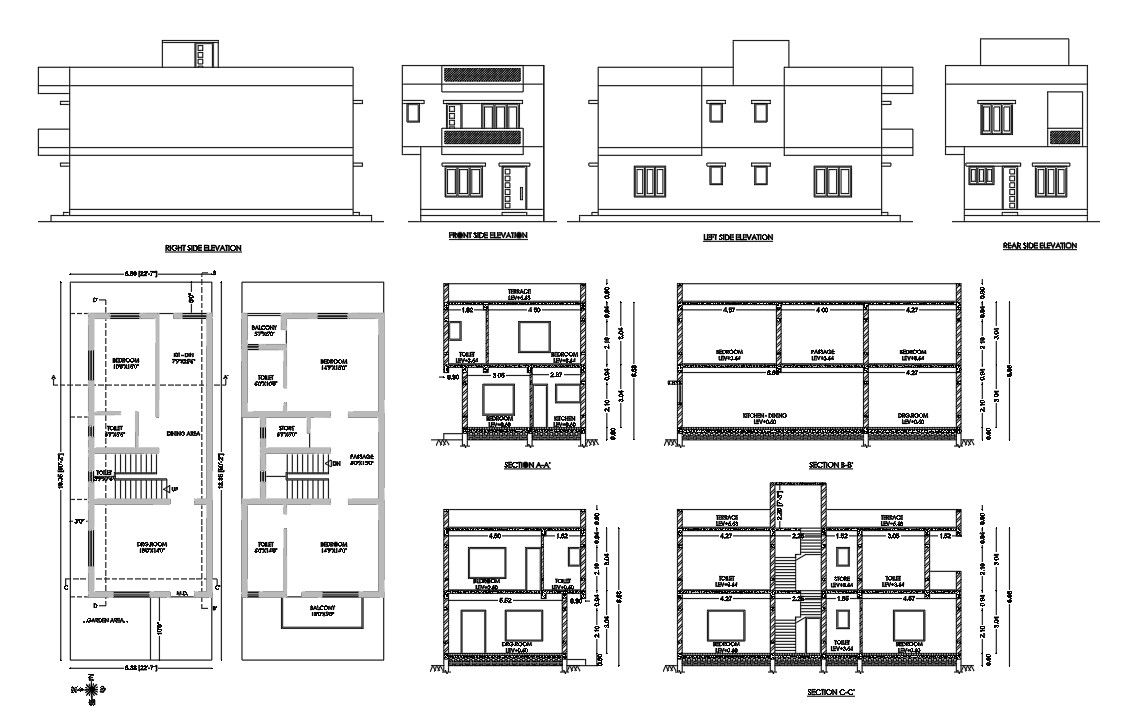
22’x60’ Modern House Plan detail drawing in DWG AutoCAD file. The modern house plan shows ground floor includes a drawing room, dining area, kitchen, toilet, bedroom. On the second floor 2 bedrooms with an attached toilet, balcony, storeroom, and passage. The inside staircase is also available in this file. In modern houses DWG File sections and elevations are available. , Thank you for downloading the AutoCAD drawing file and other CAD program files from our website. Visit CADBULL.COM Site.
Uploaded by:
K.H.J
Jani

