19x15m residential house plan AutoCAD drawing
Description
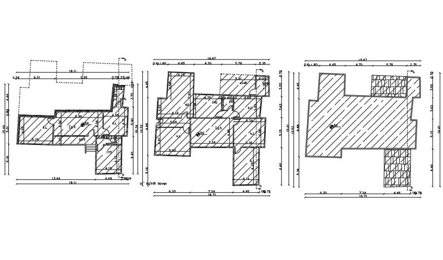
19x15m residential house plan AutoCAD drawing is given in this file. The living room, kitchen, master bedroom, guest room, kid’s room, and common bathroom are available. On the ground floor, 2bhk house is available. 3bhk houses are available on the first floor. For more details download the AutoCAD drawing file from our website.
Uploaded by:

