10x13m beautiful house plan
Description
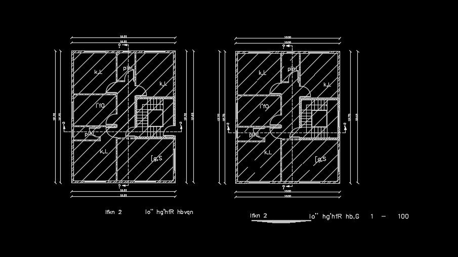
10x13m beautiful house plan is given in this AutoCAD model. This is G+ 1 house building. The living hall, kitchen, dining area, master bedroom, kid’s room, and common bathroom are available. For more details download the AutoCAD file for free from our website.
Uploaded by:
