8x12 Meter 4 BHK House Layout CAD Drawing
Description
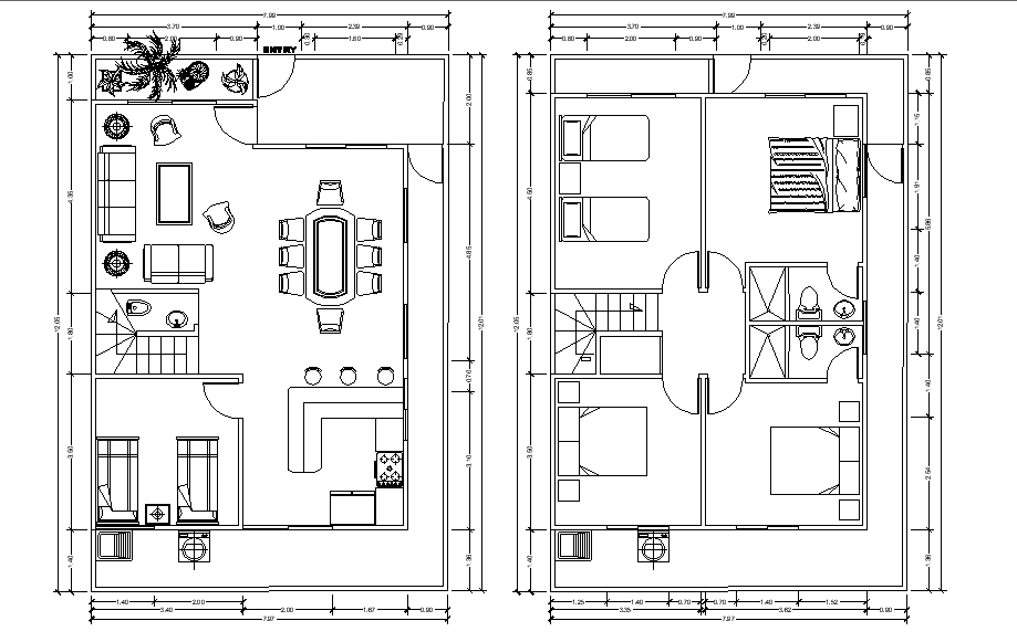
House Floor Plan shows an 8x12 meter size.8x12 Meter House Floor Plan includes column placement, 4 bedrooms, living room, kitchen, dining area, and staircase is available. centerline plan is also available in this file. 8x12 Meter House Floor Plan dimensions are in a meter. Thank you for downloading the AutoCAD drawing file and other CAD program files from our website. Visit CADBULL.COM Site.
Uploaded by:
K.H.J
Jani

