23x13m office floor plan AutoCAD drawing download now
Description
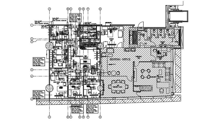
23x13m office floor plan AutoCAD drawing is given in this file. A meeting room, executive office rooms, executive admin, managing director room, existing office, gent’s toilet, ladies toilet, open kitchen, office room, reception, and other details are given. For more details download the AutoCAD drawing file from our website.
Uploaded by:

