Horizontal support rectangular duct AutoCAD drawing
Description
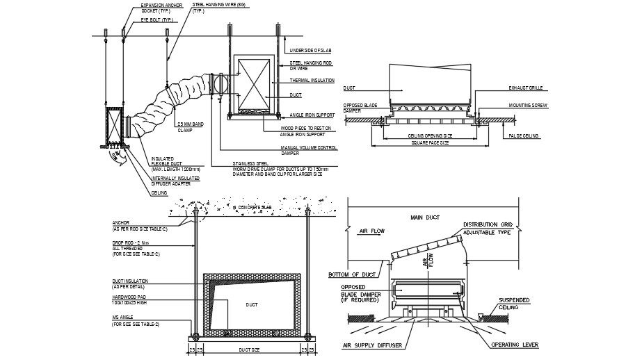
Horizontal support rectangular duct AutoCAD drawing is given in this file. Linear supply ceiling diffuser, installation detail of the exhaust register, and air supply diffusers are mentioned. Other material details are mentioned in this drawing. For more details download the AutoCAD drawing file from our website.
File Type:
DWG
File Size:
1.7 MB
Category::
Construction
Sub Category::
Construction Detail Drawings
type:
Gold
Uploaded by:

