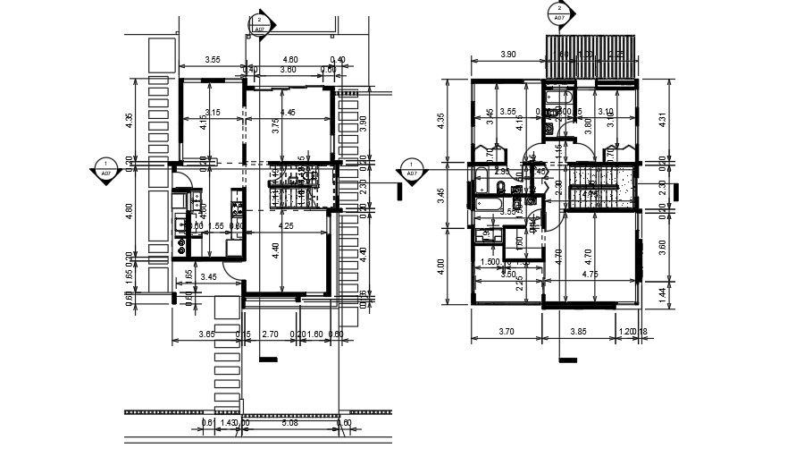
The dimension drawing of the 10x16m luxury house plan
Description
The dimension drawing of the 10x16m luxury house plan is given in this file. On the ground floor, car parking, living area, kitchen, dining area, family room, and open terrace are available. The master bedroom with the attached toilet & balcony, guest room with the attached toilet, kid’s room with attached toilet, and circulation area is available on the first floor. For more details download the AutoCAD drawing file from our website.
Uploaded by:

