133x148m industrial AutoCAD drawing Download now
Description
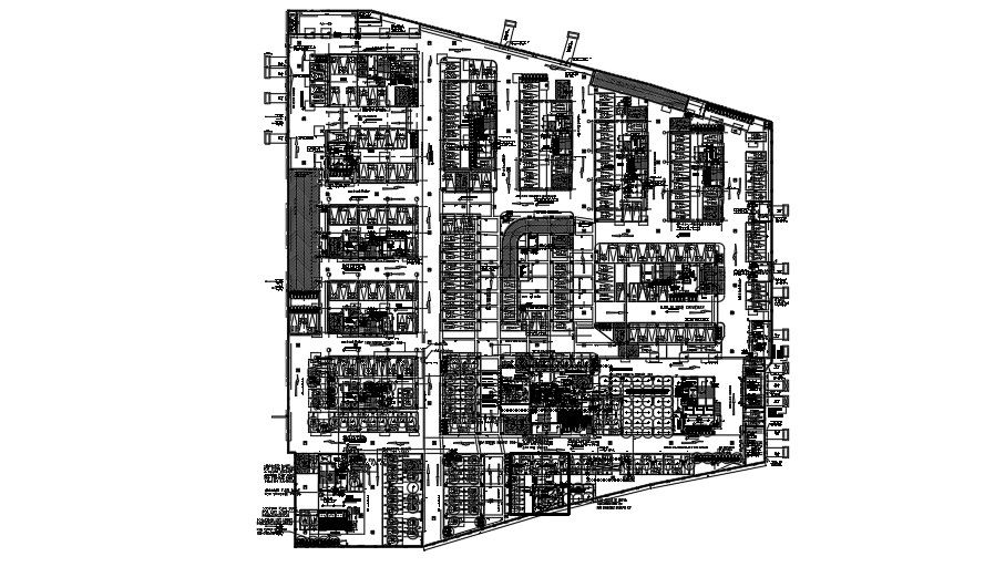
133x148m industrial AutoCAD drawing is given in this file. 150mm diameter internal hydrant pipe, flow switch, 150mm diameter drain pipe, pipe drop, 150mm diameter kitchen waste pipe, commercial tower, HVAC cutout in the ceiling, common drivers restroom, inspire FM staff room, CFM with fire damper, unloading bay area, and other details are mentioned. For more details download the AutoCAD drawing file from our website.
Uploaded by:

