An Electrical Installation Layout File
Description
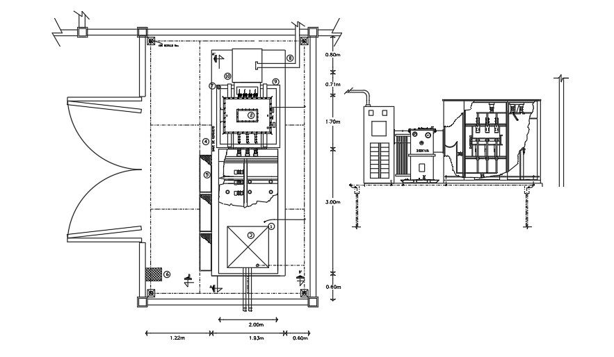
An electrical installation of the 160x86m stadium plan of the admin office plan is given in this AutoCAD model. Gent’s and ladies' toilets are provided separately. The dining area, administration office, volley league, and other details are given on this plan. For more details download the AutoCAD drawing file. Thank you for downloading the AutoCAD drawing file and other CAD program files from our website.
Uploaded by:
K.H.J
Jani

