House Drainage Layout AutoCAD File
Description
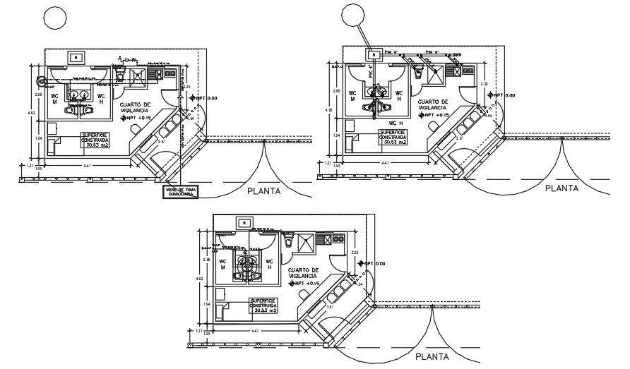
Drainage Layout Of House Layout DWG File. Drainage Layout Of House includes kitchen and toilet details with sizes. Connection details show in this AutoCAD File. Thank you for downloading the AutoCAD drawing file and other CAD program files from our website. Visit CADBULL.COM Site.
Uploaded by:
K.H.J
Jani

