25x13 Meter Apartment AutoCAD File Layout
Description
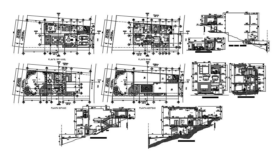
Apartment project CAD drawing shows 25x13 Meter plot size. 2d CAD drawing residential apartment house layout plan which consists 4 bedrooms, drawing room, dining area, kitchen, staircase with left elevator detail in DWG file. Site plan and elevations are also available in this AutoCAD file. On each floor 4 house is available. All detailed drawings are available in this file. download free apartment plan drawing dwg file. Thank you for downloading the AutoCAD drawing file and other CAD program files from our website. Visit CADBULL.COM Site.
Uploaded by:
K.H.J
Jani

