11x16m ground floor house plan AutoCAD drawing
Description
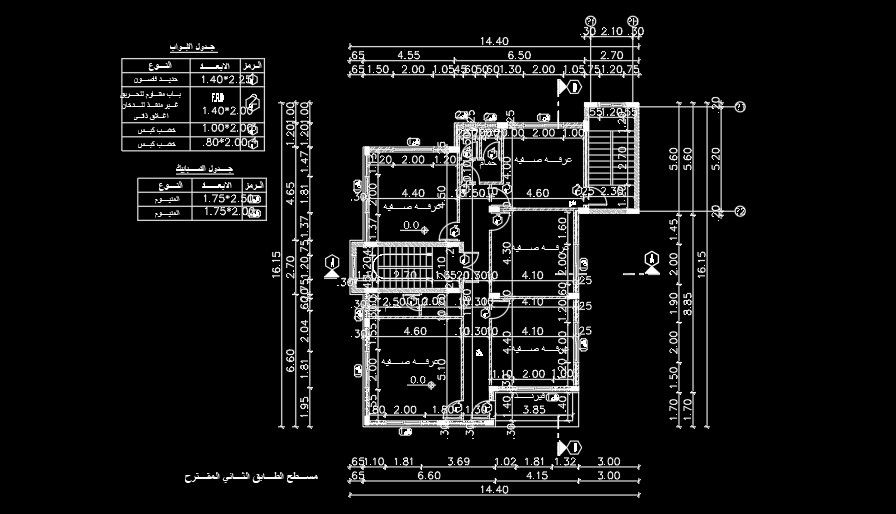
11x16m ground floor house plan AutoCAD drawing is given in this file. On this ground floor house plan, the living area, master bedroom, kid’s room, kitchen, guest room, and two common bathrooms are available. The dimension of the each room is mentioned. For more details download the AutoCAD file from our cadbull website.
Uploaded by:

