LOGIN
HOME
CATEGORIES
UPLOAD FILE
PRICING
HOUSE PLAN
ABOUT US
CONTACT US
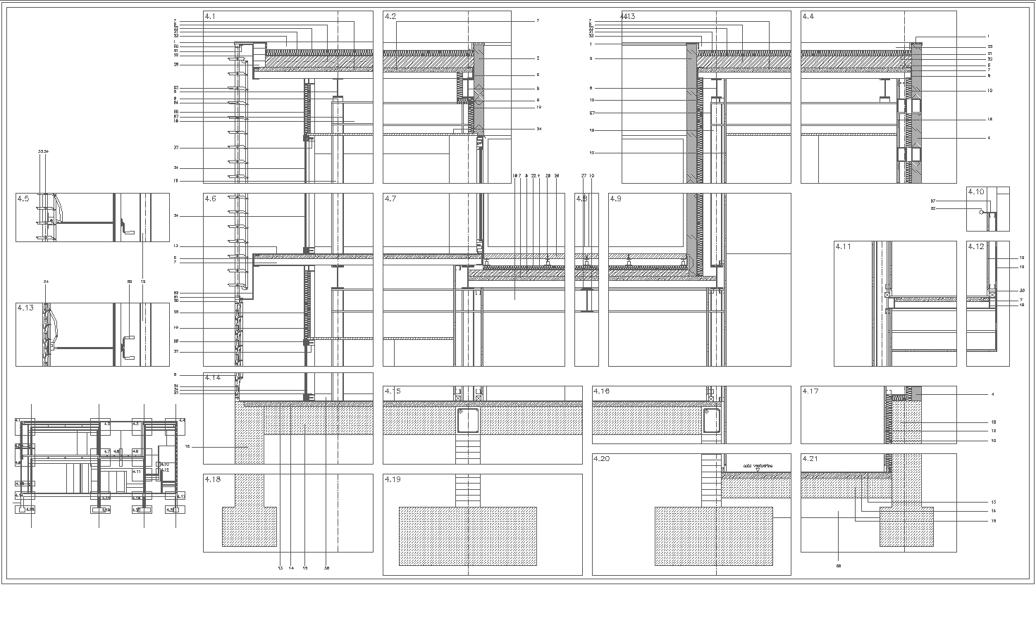
Facade sections and detail
Home
Categories
Details
Construction Details
Facade sections and detail
Uploaded by:
K.H.J
Jani
View Profile
View Profile
Description
Facade sections and detail autocad dwg files include plan, elevations and sections of Facade sections and detail.
File Type:
DWG
File Size:
445 KB
Category::
Details
Sub Category::
Construction Details
type:
Gold
Uploaded by:
K.H.J
Jani
View Profile
Download
Add to libary
find Latest
Related
Files