31x30m residential site layout AutoCAD drawing
Description
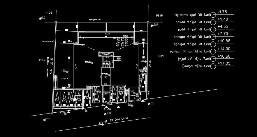
31x30m residential site layout AutoCAD drawing is given in this file. Car parking, garden, and other details are available in this drawing. The length and breadth of the house plan are 31m and 30m respectively. This is G+ 4 residential building. The total height of the building is 17.35m including water tank. For more details download the AutoCAD file from our cadbull website.
Uploaded by:

