20x18m house plan rainwater collecting hole drawing
Description
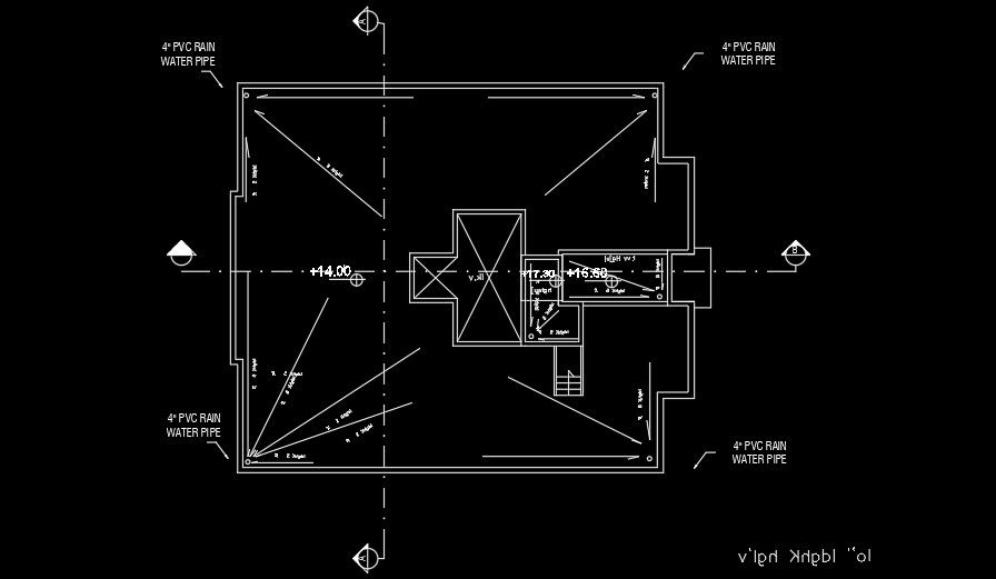
20x18m house plan rainwater collecting hole drawing is given in this AutoCAD file. There are 5 holes are provided in the terrace at corners. The dimension of the rain water pipe is 4”. For more details download the AutoCAD file from our cadbull website.
Uploaded by:
