Elevations Of Apartment Layout CAD File
Description
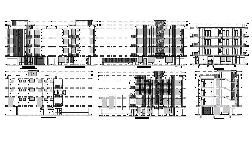
Elevations Of House Building DWG File shows a 21x21 Meter size in the file. the front elevation and Back Elevation Of the Elevation Building AutoCAD File are shown in this drawing file. The front elevation and back elevation of the building includes window and door sizes. Thank you for downloading the AutoCAD drawing file and other CAD program files from our website. Visit CADBULL.COM Site.
Uploaded by:
K.H.J
Jani

