8x15 Meter House Plan AutoCAD Layout File
Description
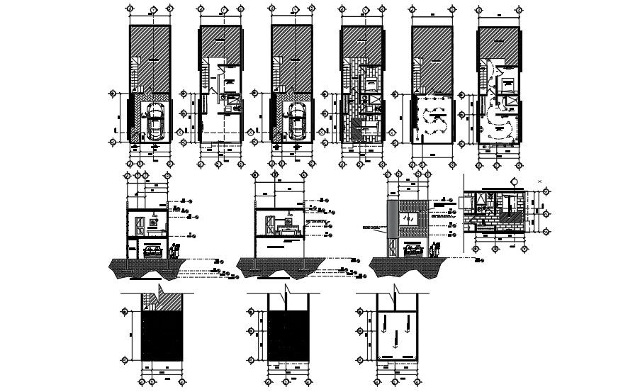
The residence house plan CAD drawing shows an 8x15 meter plot size with all furniture detail, The modern house plan includes bedrooms, dining area, living room, kitchen, sitting area, and parking in DWG file. roof detail is shown in this file. Elevations and sections are also shown in the House Plan. Thank you for downloading the AutoCAD drawing file and other CAD program files from our website. Visit CADBULL.COM Site.
Uploaded by:
K.H.J
Jani
