Water Pipe Connection AutoCAD File
Description
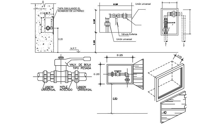
2D AutoCAD Pipe connection drawing is given in this file. Coupling reducer, branch line, riser nipple, drop ceiling board, pendent sprinkler head, side nipple, and concrete slabs are mentioned. For more details download the AutoCAD drawing file from our website.
File Type:
DWG
File Size:
5.1 MB
Category::
Dwg Cad Blocks
Sub Category::
Autocad Plumbing Fixture Blocks
type:
Gold
Uploaded by:
K.H.J
Jani
