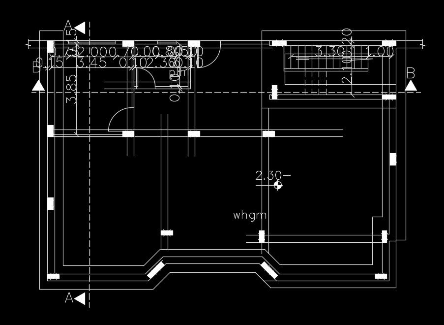
13x9m architecture house plan cut section view drawing
Description
13x9m architecture house plan cut section view drawing is given in this AutoCAD file. The column locations are mentioned in this drawing. For more details download the AutoCAD drawing file from our website.
File Type:
DWG
File Size:
1.2 MB
Category::
Structure
Sub Category::
Section Plan CAD Blocks & DWG Drawing Models
type:
Gold
Uploaded by:
