LOGIN
HOME
CATEGORIES
UPLOAD FILE
PRICING
HOUSE PLAN
ABOUT US
CONTACT US
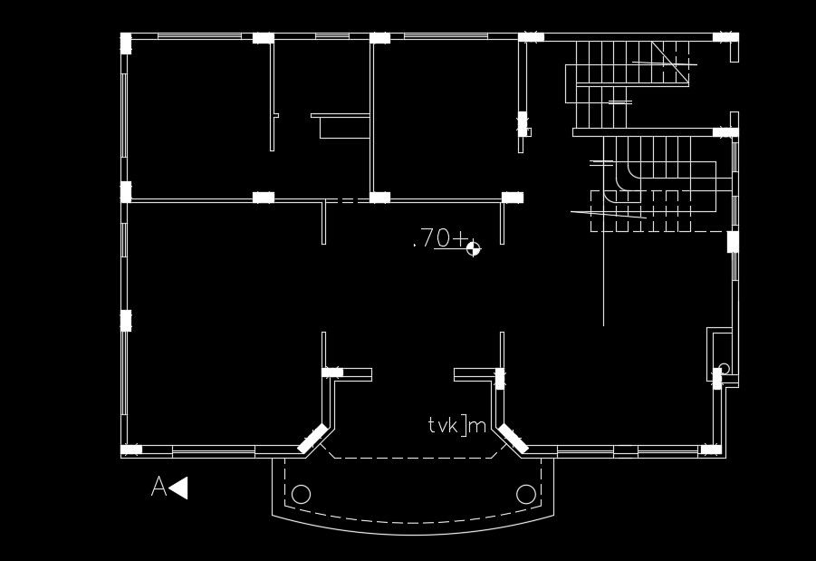
13x9m house plan column location model
Home
Categories
Structure
Column Details Drawing
13x9m house plan column location model
Uploaded by:
Meera
View Profile
View Profile
Description
13x9m house plan column location is given in this AutoCAD file. This is a two story house building. For more details download the AutoCAD drawing file from our website.
File Type:
DWG
File Size:
1.2 MB
Category::
Structure
Sub Category::
Column Details Drawing
type:
Gold
Uploaded by:
Meera
View Profile
Download
Add to libary
find Latest
Related
Files