17x15m ground floor 5bhk architecture 2D AutoCAD drawing
Description
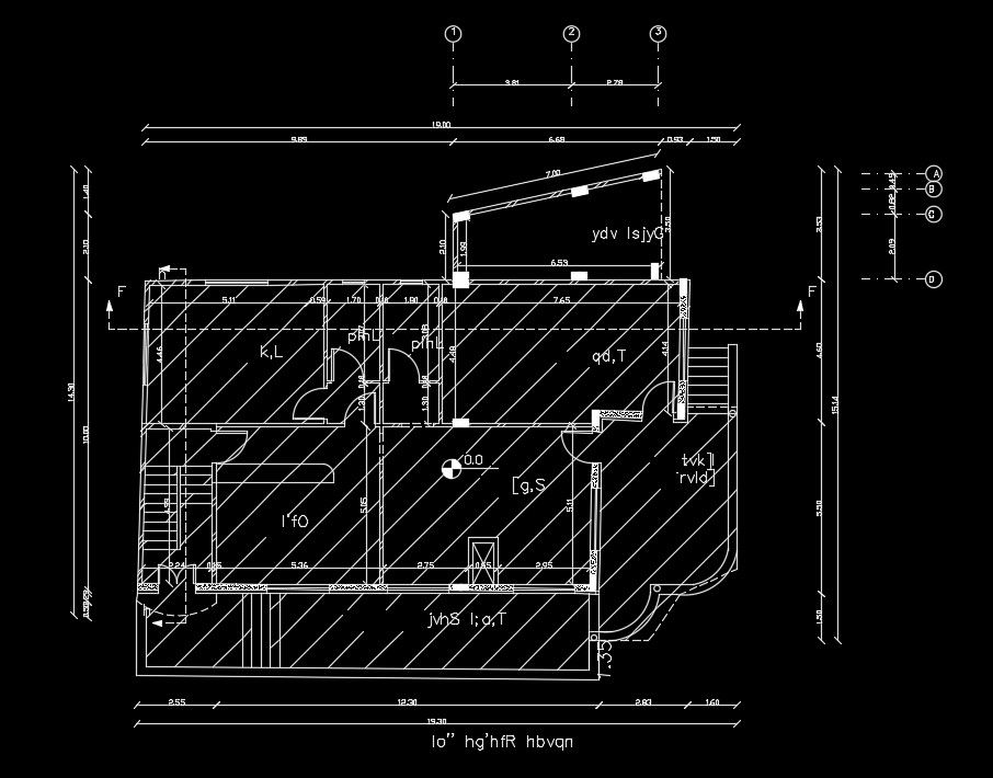
17x15m ground floor 5bhk architecture 2D AutoCAD drawing is given in this file. This is G+ 1 house building. The living room, kitchen, master bedroom with the attached toilet, guest room, and common bathroom are available. For more details download the AutoCAD drawing file from our website.
Uploaded by:

