11x15m second floor home model AutoCAD drawing
Description
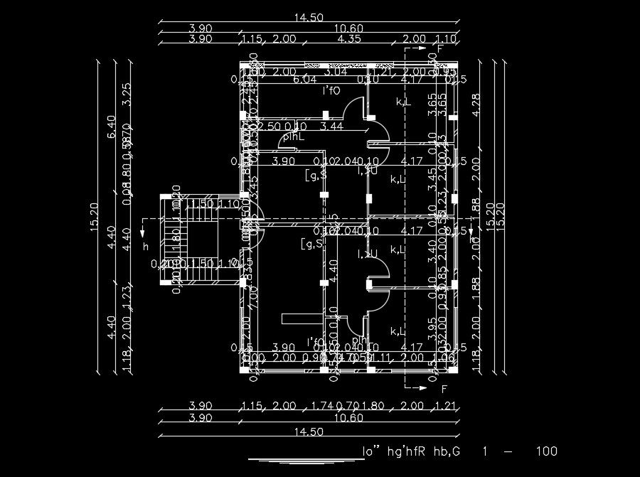
11x15m second floor home model AutoCAD drawing is given in this file. Two houses are available on this second floor. The living room, kitchen, master bedroom, kid’s room, and common bathrooms are available. For more details download the AutoCAD drawing file from our website.
Uploaded by:

