10x25m house building left side section view
Description
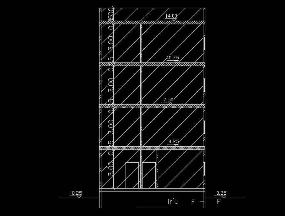
10x25m house building left side section view is given in this AutoCAD drawing model. This is G+ 3 house building. The total height of the building is 16.3m. The door, and windows are visible in this elevation view. For more details download the AutoCAD drawing file from our website.
File Type:
DWG
File Size:
225 KB
Category::
Structure
Sub Category::
Section Plan CAD Blocks & DWG Drawing Models
type:
Gold
Uploaded by:

