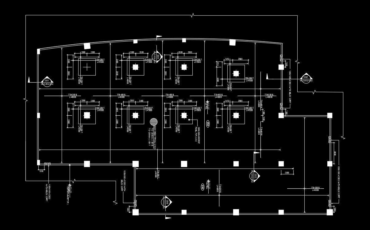
Column location of the water tank plan
Description
Column location of the water tank plan is given in this AutoCAD drawing model. The column cum foundation drawing is given in this file. Other details are given in this foundation drawing. For more details download the AutoCAD drawing file from our website.
Uploaded by:

