A water tank column section view AutoCAD drawing
Description
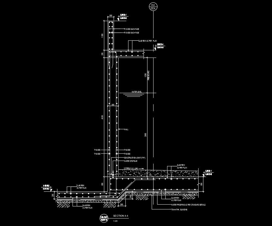
A water tank column section view AutoCAD drawing is given in this file. Water stopper, construction joint, water proofing layer, blinding, slab reinforcement and other details are mentioned. The dimension and reinforcement details are given in this model. All the material details are mentioned. For more details download the AutoCAD drawing file from our website.
Uploaded by:

