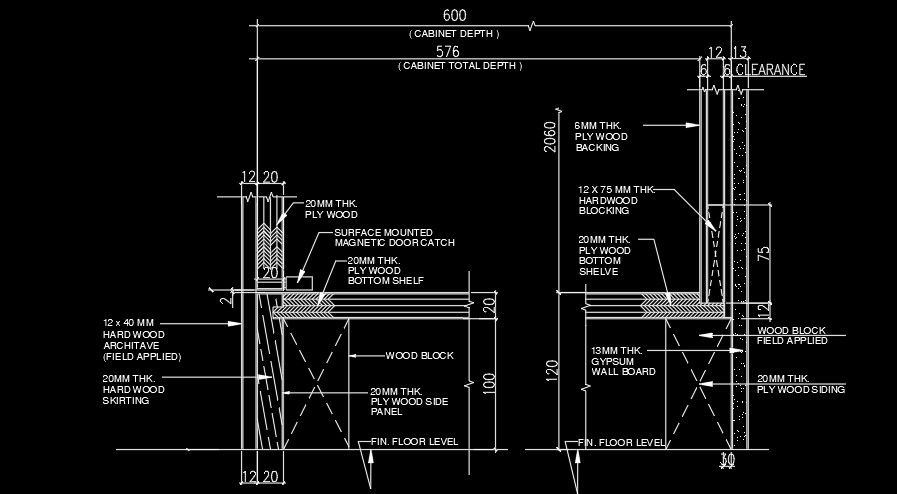
576mm cabinet width AutoCAD drawing
Description
576mm cabinet width AutoCAD drawing is given in this file. Surface mounted magnetic door catch, 13mm thickness gypsum board, 20mm thickness ply wood top panel, 8mm thickness hard wood edge trim, wood shim spacer, and other details are mentioned. For more details download the AutoCAD drawing file from our cadbull website.
Uploaded by:
