Medical Room Cabinet AutoCAD Construction Drawing Details

Medical Room Cabinet AutoCAD Construction Drawing Details
Profile

Uploaded by:

Meera

Description
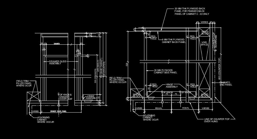
Medical room cabinet construction drawing is given in this AutoCAD file. 20mm ply wood cabinet side panel, ad joining cabinet, line of counter top, over hung, field trim filler panel, wood deck, void space, finished end panel, drawer glide assembly, and other details are mentioned. For more details download the AutoCAD drawing file from our cadbull website.
Profile

Uploaded by:

Meera

find Latest

Related Files

WhatsApp Chat