320x175m hospital building back and right side elevation views
Description
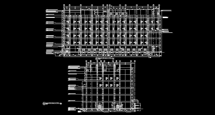
320x175m hospital building back and right side elevation views are given in this file. This is a multi-specialty hospital building with the floor of G+ 7. Each floor is provided for different sections. For more details download the AutoCAD drawing file from our cadbull website.
Uploaded by:

