Ground floor enlarged staircase plan AutoCAD drawing file
Description
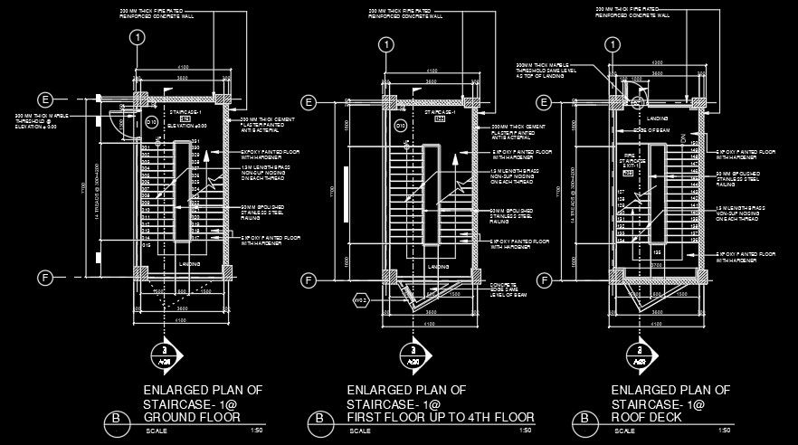
Ground floor enlarged staircase plan AutoCAD drawing file is given. The reinforcement details are given clearly. For more details download the AutoCAD drawing file from our cadbull website.
Uploaded by:

