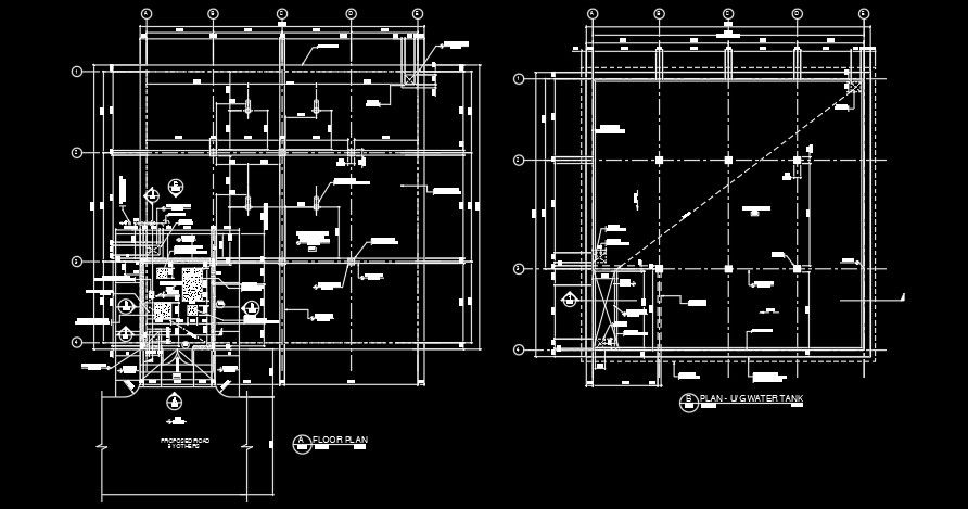
The water tank plan is given in this AutoCAD drawing model
Description
The water tank plan is given in this AutoCAD drawing model. Details are mentioned clearly in this drawing model. For more details download the AutoCAD drawing file from our cadbull website.
File Type:
DWG
File Size:
421 KB
Category::
Construction
Sub Category::
Construction Detail Drawings
type:
Gold
Uploaded by:
