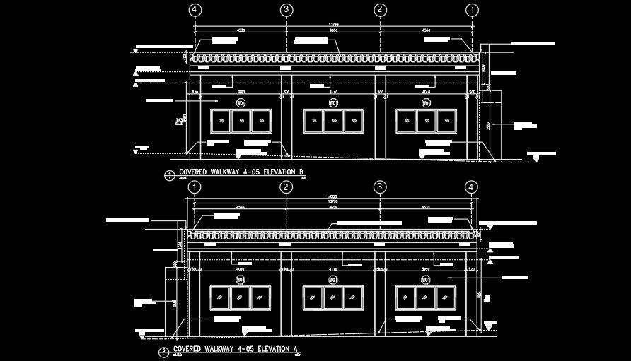
A covered walkway elevation drawing is given in this AutoCAD model
Description
A covered walkway elevation drawing is given in this AutoCAD model. The back wall, waterproofing membrane, sealant, and other details are mentioned. For more details download the AutoCAD drawing file from our cadbull website.
Uploaded by:

