15x21m house plan AutoCAD drawing is given in this file
Description
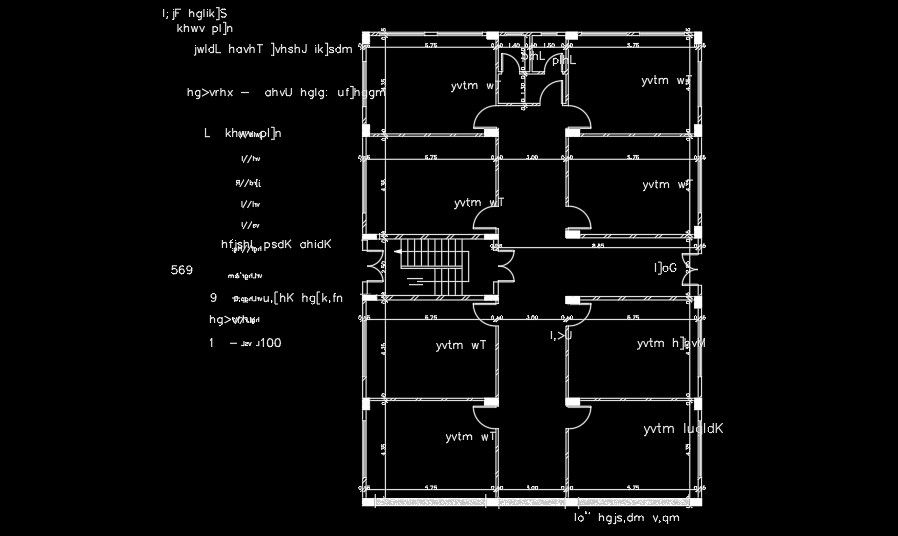
15x21m house plan AutoCAD drawing is given in this file. This is a 5bhk house plan. And also, G+ 1 house building. The living room, kitchen, master bedroom, two kid’s room, two guest room, family lounge, and three common bathrooms are available. For more details download the AutoCAD drawing file from our cadbull website.
Uploaded by:

