A section view of the 30x10m house building AutoCAD drawing
Description
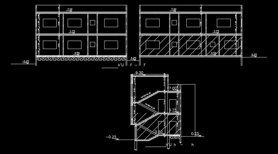
A section view of the 30x10m house building AutoCAD drawing is given in this file. The total height of the building is 7m. Two houses are available with 3bhk. The living room, kitchen, master bedroom, kid’s room, guest room, family lounge area, and two common bathrooms are available on both houses. For more details download the AutoCAD drawing file from our cadbull website.
File Type:
DWG
File Size:
1022 KB
Category::
Structure
Sub Category::
Section Plan CAD Blocks & DWG Drawing Models
type:
Gold
Uploaded by:

