Duct opening detail drawing is given in this AutoCAD file
Description
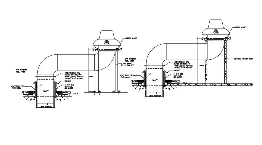
Duct opening detail drawing is given in this AutoCAD file. Waterproofing flashing, fan motor housing, rubber gasket, steel frame, slope detail, 25mm thickness rigid insulation, 40mm standing seam riveted, bolted on 300mm centers with mastic sealant, and other details are mentioned. For more details download the AutoCAD drawing file from our cadbull website.
File Type:
DWG
File Size:
2 MB
Category::
Construction
Sub Category::
Construction Detail Drawings
type:
Gold
Uploaded by:

