HVAC detail drawing is available on this plan
Description
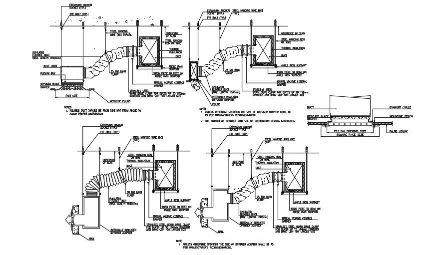
HVAC detail drawing is available on this plan. Stainless steel, manual volume control damper, acoustic ceiling, blade damper, plenum box, duct liner, thermal insulation, steel hanging, underside of slab, band clamp, expansion anchor socket, steel hanging wire, eye bolt, and other details are mentioned. For more details download the AutoCAD drawing file from our cadbull website.
Uploaded by:

