Attorney headquarters substation & maintenance room plan drawing
Description
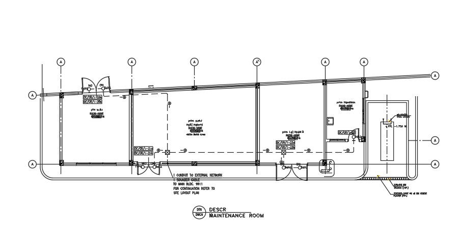
Attorney headquarters substation & maintenance room plan drawing is given in this file. Control room, maintenance room, and galvanized ladders are available on this floor. For more details download the AutoCAD drawing file from our cadbull website.
Uploaded by:

