Triangular counterpoise grounding arrangement detail drawing
Description
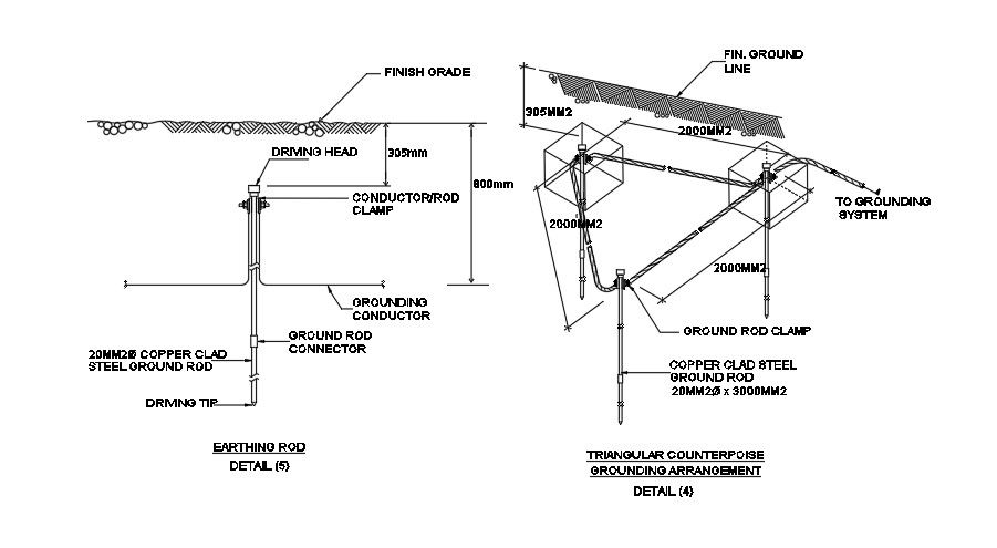
Triangular counterpoise grounding arrangement detail drawing is given in this CAD file. Ground rod lamp, copper clad steel ground rod, conductor rod clamp, ground line, ground rod connector, and driving tips are specified in this drawing. For more details download the AutoCAD drawing file from our cadbull website.
Uploaded by:

