A shopping complex brand rack detail drawing i
Description
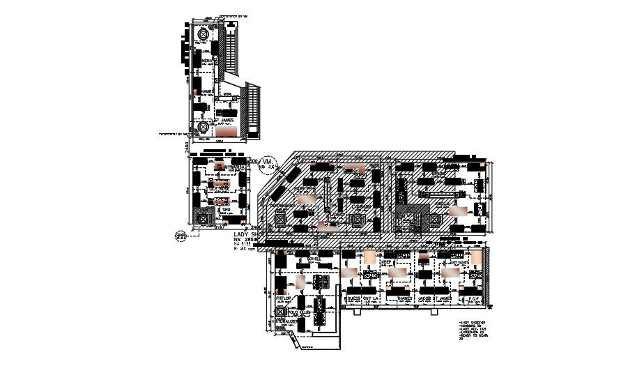
A shopping complex brand rack detail drawing is given in this file. Racks are provided for each brand. Men’s casual, men’s shoes, ladies hand bags, ladies shoes, expressions, easy pieces, sun glass, and other details are specified. For more details download the AutoCAD drawing file from our cadbull website.
Uploaded by:

