A rack section view is given in this drawing model
Description
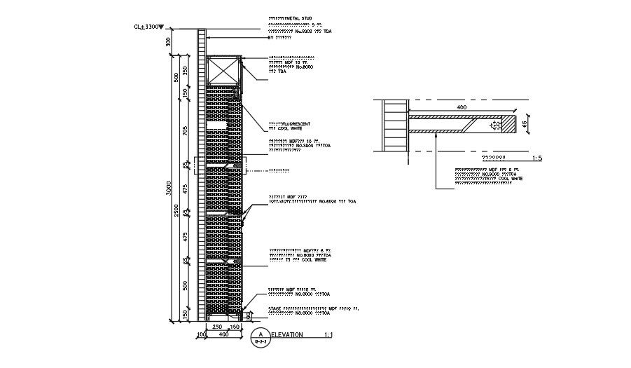
A rack section view is given in this drawing model. This is provided to the shopping complex building. The total height of the rack is 3000mm. For more details download the AutoCAD drawing file from our cadbull website.
Uploaded by:

