12x20m house plan column drawings are given in this AutoCAD model
Description
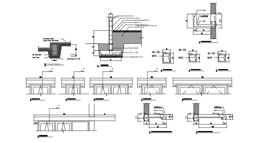
12x20m house plan column drawings are given in this AutoCAD model. The reinforcement details are provided for each column. For more details download the AutoCAD drawing file from our cadbull website.
Uploaded by:

