Attorney headquarters main building first floor fire alarm system drawing
Description
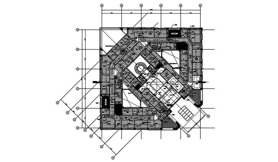
Attorney headquarters main building first floor fire alarm system drawing is mentioned in this file. Alarm locations are specified in this drawing. For more details download the AutoCAD drawing file from our cadbull website.
Uploaded by:

