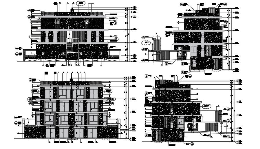
An elevation view of the 23x18m house building view
Description
An elevation view of the 23x18m house building view is given in this CAD drawing file. The material details are given which is used for building. For more details download the AutoCAD drawing file from our cadbull website.
Uploaded by:

