23x18m house plan sanitary line layout CAD drawing
Description
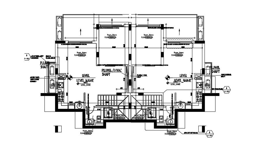
23x18m house plan sanitary line layout CAD drawing is given in this file. The living rooms, kitchen, bedrooms, bathrooms, study room, guest room, and roof terraces are mentioned. For more details download the AutoCAD drawing file from our cadbull website.
File Type:
DWG
File Size:
1.4 MB
Category::
Dwg Cad Blocks
Sub Category::
Sanitary CAD Blocks And Model
type:
Gold
Uploaded by:

