Attorney headquarters main building fifth floor communication plan drawing
Description
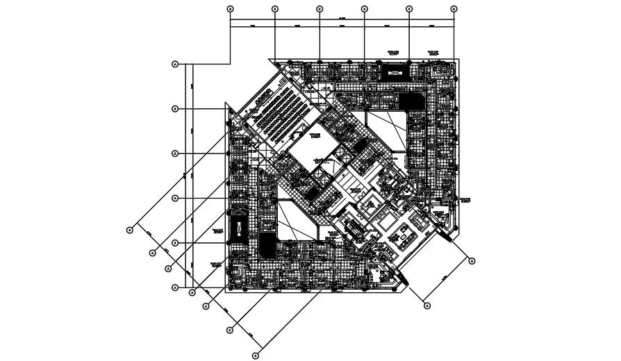
Attorney headquarters main building fifth floor communication plan drawing is given in this file. The meeting rooms, office room, manager room, department manager room, lobby, corridor, gent’s toilet, female toilet, reception, room details, and other details are mentioned. For more details download the AutoCAD drawing file from our cadbull website.
Uploaded by:

