Attorney headquarters storm system layout drawing
Description
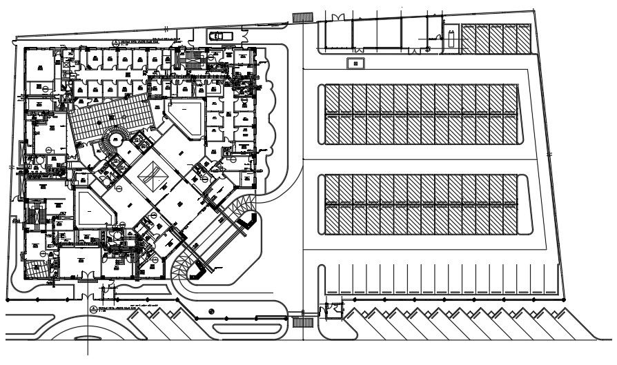
Attorney headquarters storm system layout drawing is given in this file. The office room, manager room, department manager room, lobby, corridor, gent’s toilet, female toilet, reception, car parking, room details, and other details are mentioned. For more details download the AutoCAD drawing file from our cadbull website.
Uploaded by:

