Architecture 2D Door construction drawing file is given
Description
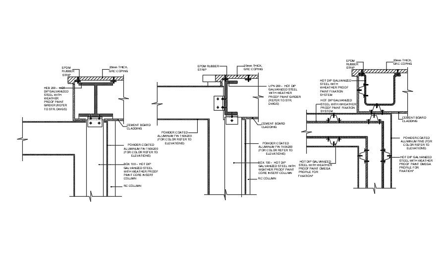
Architecture 2D Door construction drawing file is given. 3 door constructions is provided. Cement board cladding, RC column, hot dip galvanized steel with weather proof paint core insert column, powder coated aluminum fin 150x200mm, 20mm thickness GRC coping, EPDM rubber strip, and other details are mentioned. For more details download the AutoCAD drawing file from our cadbull website.
File Type:
DWG
File Size:
2 MB
Category::
Dwg Cad Blocks
Sub Category::
Windows And Doors Dwg Blocks
type:
Gold
Uploaded by:

