11x8m 2D architecture ground floor house plan AutoCAD drawing
Description
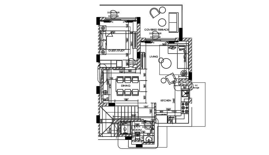
11x8m 2D architecture ground floor house plan AutoCAD drawing is provided in this file. The living room, kitchen, dining area, guest room, covered terrace, and common bathrooms are available on this ground floor. For more details download the AutoCAD drawing file from our cadbull website.
Uploaded by:

