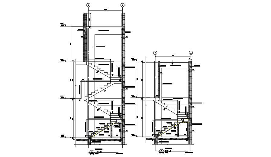
32x17m building wall section detail drawing is given in this CAD file
Description
32x17m building wall section detail drawing is given in this CAD file. A staircase thread and riser details are given. The dimension and reinforcement details are mentioned. For more details download the AutoCAD drawing file from our cadbull website.
Uploaded by:

