32x17m building wall section detail drawing
Description
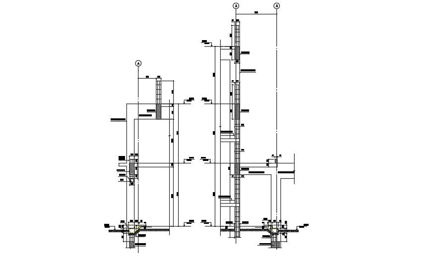
32x17m building wall section detail drawing is given in this CAD file. A column cum wall section drawing is given in this file. The dimension and reinforcement details are mentioned. For more details download the AutoCAD drawing file from our cadbull website.
File Type:
DWG
File Size:
5.8 MB
Category::
Structure
Sub Category::
Section Plan CAD Blocks & DWG Drawing Models
type:
Gold
Uploaded by:

